1answer.
Ask question
Login Signup
Ask question
All categories
  • English
  • Mathematics
  • Social Studies
  • Business
  • History
  • Health
  • Geography
  • Biology
  • Physics
  • Chemistry
  • Computers and Technology
  • Arts
  • World Languages
  • Spanish
  • French
  • German
  • Advanced Placement (AP)
  • SAT
  • Medicine
  • Law
  • Engineering
Hitman42 [59]
2 years ago
11

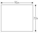
A rectangular field with sides as shown below has to be fenced all around. If fencing posts have to be fixed at 1-metre interval

s, how many posts are needed?
1. 167
2. 334
3. 668
4. 6840​

Mathematics
1 answer:
ehidna [41]2 years ago
4 0

Step-by-step explanation:

the perimeter of a rectangle is

2×length + 2×width

so, here

2×95 + 2×72 = 190 + 144 = 334 m

so, yes, the answer 2. 334 is correct.

You might be interested in
Can someone please help me on this? thanks!!
tankabanditka [31]

Answer:

store C is the best with .122 per ounce the others are .129 and .135

6 0
3 years ago
A group of 15 people are going to run a race. The top 8 will advance to the finals. Determine if the situation is a permutation
LUCKY_DIMON [66]

For the given situation we have a total of 259,459,200 permutations.

<h3>How many permutations are?</h3>

First, how we know that it is a permutation?

Because the order matters, we aren't only selecting 8 out of the 15 people, but these 8 selected also have an order (is not the same thing to finish the race first than fourth, for example).

Then we need to find the number of permutations, to do it, we need to find the numbers of options for each of the 8 positions.

  • For the first position there are 15 options.
  • For the second position ther are 14 options (one runner already finished).
  • For the third position there are 13 options.
  • And so on.

Then the total number of permutations (product between the numbers of options) is:

P = 15*14*13*12*11*10*9*8 = 259,459,200

If you want to learn more about permutations:

brainly.com/question/11732255

#SPJ1

8 0
3 years ago
It is impossible to create a square pyramid by rotating a shape about an axis because its base is not ________.
natta225 [31]
It is impossible because it's base is not circular. A solid of revolution is <span>obtained by rotating a </span>plane curve<span> around some </span>straight line, that is, <span>the </span>axis of revolution that lies on the same plane. The closest to a square pyramid applying this concept is by rotating a right triangle around the opposite or adjacent side (the axis), but the shape that you get is a straight circular cone. 
7 0
3 years ago
Ignore the highlighted ones please thxs
denis23 [38]
I believe it’s D. 2/3
5 0
3 years ago
Read 2 more answers
Help ;-; imve been stuck here for hours
shutvik [7]
Line
Angle
Line Segment
Point
Ray
(Hope this helps you)
6 0
2 years ago
Other questions:
  • Solve the equation x^3-5x^2+2x+8=0 given that -1 is a zero of f(x)=x^3-5x^2+2x+8
    9·1 answer
  • In this order only, and only using -+×÷, solve this problem 3 7 12 2=85​
    8·1 answer
  • A triangle has two sides of 10 and 14 what value could the third length be<br>​
    14·1 answer
  • Income tax paid to the federal government is based on your _______________.
    11·2 answers
  • I need help. Thanks so much
    14·1 answer
  • What is the range of function g if g(x) = f(x) + 3
    8·1 answer
  • Help help math math math
    10·2 answers
  • 3x-6y=-12<br> 6x+6y=30 <br> What is the value of x and y
    15·1 answer
  • HURRY PLS!! TEST!!!!
    9·1 answer
  • Let f= {(1,2),(2,3),(3,5),(4,7)}<br><br> What is f ⁻¹ ∘ f
    12·1 answer
Add answer
Login
Not registered? Fast signup
Signup
Login Signup
Ask question!