1answer.
Ask question
Login Signup
Ask question
All categories
  • English
  • Mathematics
  • Social Studies
  • Business
  • History
  • Health
  • Geography
  • Biology
  • Physics
  • Chemistry
  • Computers and Technology
  • Arts
  • World Languages
  • Spanish
  • French
  • German
  • Advanced Placement (AP)
  • SAT
  • Medicine
  • Law
  • Engineering
soldi70 [24.7K]
3 years ago
10

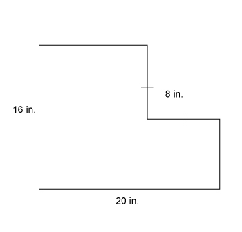
What is the area of the figure?

Mathematics
1 answer:
kobusy [5.1K]3 years ago
7 0
Given:
Length = 20 inches
Width = 16 inches
Missing = 8 inches

There are two shapes in the figure. A rectangle and a square.

We need to get the area of the rectangle and the area of the square. Then, subtract the area of the square from the area of the rectangle to get the total area of the figure.

Area of the rectangle = length x width
                                  = 20 in x 16 in
Area of the rectangle = 320 in²

Area of the square = s² = 8² = 64 in²

Area of the figure = 320 in² - 64 in² = 256 in²
You might be interested in
Write This number in expanded form 719,927
earnstyle [38]
Seven hundred nine thousand and nine hundred twenty seven
4 0
3 years ago
Read 2 more answers
scott has a travel book on each of four Hawaiian: Maui, Kauai, Hawaii, and Oahu. In how many different ways can these four books
Eddi Din [679]
Alphabetical
By number of population
By crime rate
8 0
4 years ago
Read 2 more answers
What is the answer to this problem I need help please?!
-Dominant- [34]
Use demo App that would help you to find the answer
4 0
3 years ago
Harry is reviewing his finances. He compiled a list of expenses and income. Which bar chart that accurately represents Harry's s
kvasek [131]

Answer:

The answer is the (Expenses is between 2,000-2,500) and the (Income is  over 3,000)

Step-by-step explanation:

I just took the test i got it right

4 0
3 years ago
Pls help me on this!
Ira Lisetskai [31]

Answer:

5 2/3

Step-by-step explanation:

So because it is a mixed number that means you want to have a whole plus a fraction. You keep the 5 as the whole and because 2/3=.666666. You add them together making 5 2/3.

3 0
3 years ago
Other questions:
  • Marcus sorts his 85 baseball cards into stacks of 9 cards each how many stacks of 9 cards can Marcus make
    15·2 answers
  • Need help!
    7·2 answers
  • Find the fraction that is equivalent to 21%
    15·2 answers
  • You spin the spinner shown below once. The spinner has 4 equal sectors colored pink, purple, blue, and green. What is P(blue)?
    14·1 answer
  • Solve. <br> 3 + x = 4x + 12
    13·1 answer
  • Not sure if im right please help
    5·2 answers
  • Which graph shows the result of dilating this figure by a factor of One-third about the origin?
    5·1 answer
  • A large cooler full of water is being drained. The relationship between the amount of water in the cooler in liters and the numb
    8·1 answer
  • What is 2+2<br> what is square root of 2<br> what is 2 squared<br> what is 2 cubed
    6·2 answers
  • According to financial experts, a renter should allow 25% - 30% of their gross income for rent. Brandon makes $52,000 per year.
    6·1 answer
Add answer
Login
Not registered? Fast signup
Signup
Login Signup
Ask question!